ARTIST’S LOFT

PROJECT BRIEF

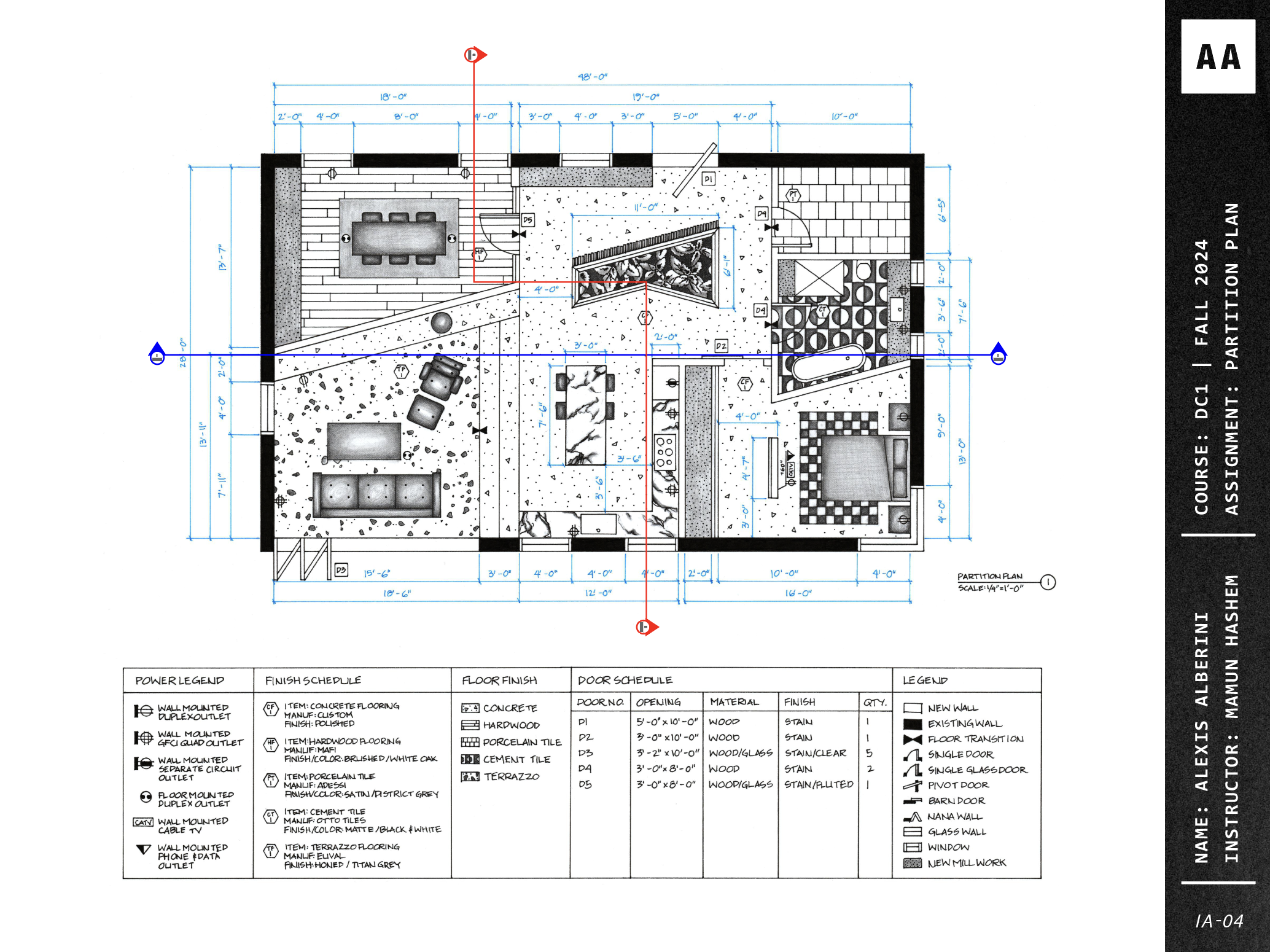
An academic design project reimagining a fixed floorplan in downtown Los Angeles as a Tokyo-inspired artist’s loft. With fixed walls and windows, the challenge was to integrate six distinct floor finishes into an unconventional, abstract plan. The result balances function and expression through material and spatial play.

INPSIRATION

Inspired by Tokyo’s minimalist aesthetic, the loft combines concrete and warm cedar, industrial structure and domestic intimacy. The design channels studio-like openness while layering tactile finishes to create a versatile, creative sanctuary.

TOOLS

Vellum, Micron Pen, Graphite

Previous
Previous

Tetsubin Lodge

Next
Next

Line Work